L-2000 electric linear valve actuators
Enclosure :
- IP67、NEMA 4X:Water-proof and dust-proof enclosure.
- Material:Dry powder coating aluminum alloy.
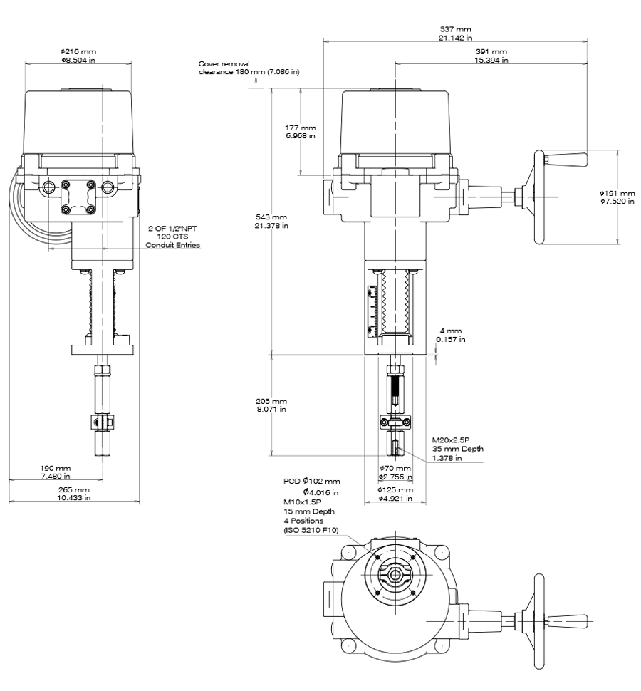
Position Indicator :
- All models are equipped with continuous mechanical position indicator. The external stem visual position indicator provides easily read and instantly available stem position.
Modulating Control :
- Actuator can be operated according to input signal and provide the output signal for feedback.
- Input signal:4-20mA, 1-5V or 2-10V.
- Output signal:4-20mA or 2-10V.
Adjustable Stroke :
- Allow users to adjust actuator’s stroke to match valve stem’s stroke. (Refer to the specifications for stroke range)
Motor :
- All models are equipped with DC motor and provide low power consumption, high duty cycle and efficiency.(1500 starts per hour)
Working Conditions :
- Ambient temperature:-30℃ to +65℃ / -22℉ to +149℉
- Relative humidity:30% to 95%
Slow-speed operation :
- In addition to the standard operating speed, if slower operating speed is needed, please contact with our sales person.
Conduit entry :
- standard : 1/2” NPT
- option : M20 or 3/4” NPT
Voltages :
- 24V AC/DC
- 110/220V AC
- CE
- CSA

Space heater
A space heater can increase the internal temperature and keep dry inside actuator to avoid the freezing lubricant and moisture causing actuator failure under low temperature or high humidity. Heater is not recommended if the ambient temperature is above 35℃/95℉. However, when the temperature varies much from day to night or between summer and winter, heater and thermostat (25±5 ℃ / 77±41 ℉) are recommended.

Heater thermostat
The option can switch the heater off when the temperature inside the actuator is over 25°C / 77°F.

Floating controller
An external switch is applied to provide either two-position or floating control to the actuator.
Floating(L-250~L-500)
The picture is based on AC 110/220V.
Floating controller
An external switch is applied to provide either two-position or floating control to the actuator.
Floating(L-1000~L-2000)
The picture is based on AC 110/220V.
Potentiometer unit
The option can be ordered with On/Off actuators. The selection has 1k or 5k ohm resistance values. It provides feedback signal for position indicator.

Communication Protocols
Modbus (MODBUS and modulating control cannot service at the same time.)




